« Action ou processus visant à permettre
un usage continu ou contemporain compatible
avec le lieu patrimonial ou avec l’une de ses composantes,
tout en protégeant la valeur patrimoniale du lieu »
Normes et lignes directrices
Parc Canada
Élévation du projet
Lieu : Bellegarde-sur-Valserine, France
Date : printemps 2013
Photographie de la ville de Bellegarde-sur-Valserine
Bellegarde-sur-Valserine est une ville qui souffre de ses préjugés. Ville de passage, ville industrielle, ville-dortoir… Pourtant, elle connut autrefois une période d’or.
Croquis de la façade principale de la Salle des Visites
Daté du 19ème siècle, le bâtiment qu’est la salle des visites en est un emblème. En effet, aujourd’hui désaffectée, cette ancienne douane ferroviaire contient sur ses murs l’ensemble de l’histoire de la ville de Bellegarde-sur-Valserine : une richesse exponentielle phénoménale suivie d’un abandon et d’un désintérêt à la fois progressif et brutal.
En partant des sources qui firent l’ancienne renommée de la ville (Les pertes de la Valserine notamment), j’ai souhaité ici mettre en valeur son patrimoine multiple par la création d’un pôle culturel dont le coeur réside en une médiathèque originale et sensible.
Un lieu de porosité et d’échange qui serait le premier pas vers la découverte d’une ville qui a beaucoup à montrer et à offrir.
l
Schéma arborescent explicatif du programme du projet
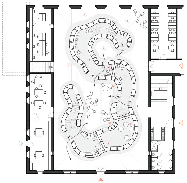
L’histoire de la ville se retranscrit sur les murs (écussons, peintures d’époque, traces d’usures). J’ai donc décidé de les conserver dans leur état actuel et de travailler le meuble pour souligner, contraster et mettre en valeur l’enveloppe tout en répondant aux besoins d’une médiathèque.
Retranscription des traces laissées par l’usage et le temps
De par sa forme fluide et sa hauteur, cette médiathèque possède différents univers : à la fois englobante et englobée, ancrée et surélevée, elle se propose d’offrir diverses sensations pour repenser les actes de la lecture et du travail dans un lieu qui se veut interactif et à la portée de tous.
Croquis personnels du projet
Photographies de la maquette du projet
Projet d’atelier de licence réalisé à la HEAD
Genève, printemps 2013
Sous la direction de Florence Vandenbeusch
Semestre 6, HEAD AI – Genève

















